펭고,penggo

본문 바로가기

펭고,penggo

담당자 정보

  • 담당자명 이수진
  • 연락처 010-9475-3251

안성시 일죽면 방초리 일죽 물류센터

경기 안성시 일죽면 방초리 221-6 (경기 안성시 일죽면 사실로 161-57 (방초리) 외 방초리 221-5,1023-17,234,225-4)

지도보기

  • 대지면적

    46,919.00㎡ (24,230.00평)

  • 연면적

    98,942.00㎡ (29,930.00평)

  • 창고유형

    저온

  • 창고온도

    0℃, -25℃

창고설명

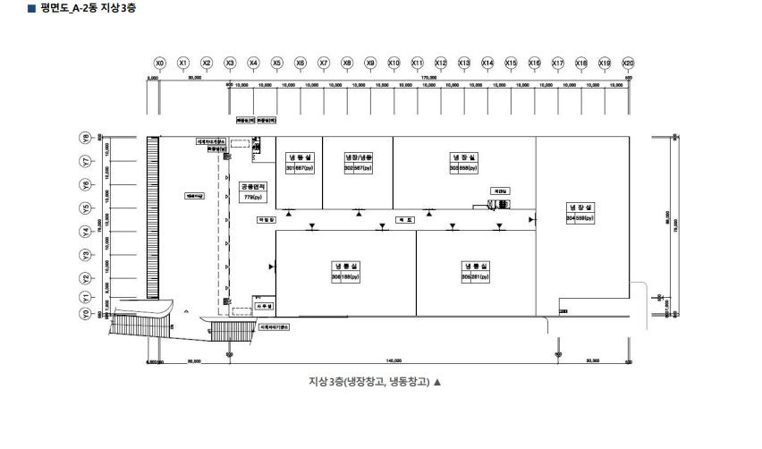
대형 물류창고 정보 안성시 일죽면 방초리 221-5,6 *2필지 대지 24,230p 연면적 29,930p 4F/B1.2개동건물 2019년 사용승인*상.저온(냉동.냉장)최신물류 시스템.경사면활용램프웨이설치 동시접안. 각층7~34대 차량접안가능. 11t,40ft 트레일러진출입가능.캐노피설치 악천후 상하차 *주차 500대 수도권 반도체 중심권 입지, 전국 수배송 최고적합, IC인접.교통 굿 *안정임차수익: 장기 대기업 단독 임차 2020.2~2027.2 보증금 30.6억원/월13.7억원(동원산업,엠큐로직스, 동원로직스,한중푸드 선진FS 대상) 매년2%임료 상승함(임대수익 보장) 매가 2300억원 HP 010-9475-3251

로드뷰

경기 안성시 일죽면 사실로 161-57 (방초리) 외 방초리 221-5,1023-17,234,225-4

* 로드뷰가 지원 안되는 경우 추후 업데이트될 예정입니다.
또는 페이지 상단 우측 "지도보기" 아이콘을 통해 확인 가능합니다.